最新资讯

您现在的位置: 首页 > 动态 > 文章正文动态

    我的世界现代别墅(两层半小别墅,宽8.5米进深12米,该怎么设计)

    发布时间:2022-10-23 04:30 点击:

      更多农村别墅图纸,欢迎右上关注。

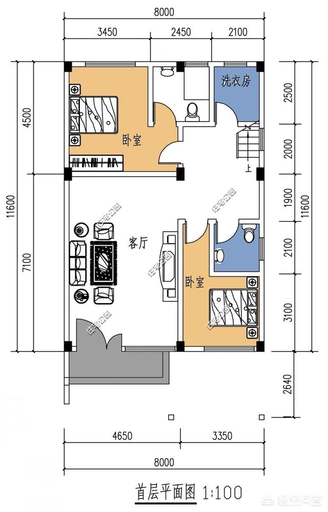
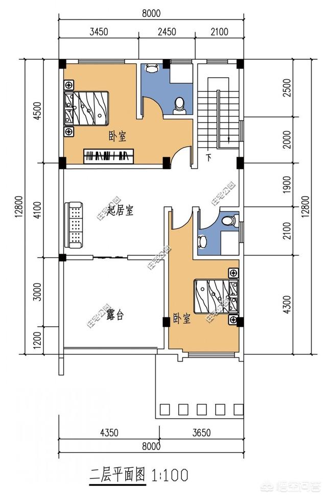
      您图中这套农村别墅是我们去年发布的,我先把平面图给您补齐,面宽是8米,进深是11.6米,二层,厨房不进楼,庭院中单建。再给您一套按照您要求的,两层半农村别墅户型,面宽8.5米,进深11.7米,带厨房户型供您参考。

      给您推荐这栋两层半户型,厨房进楼,坐北朝南效果图,及坐南朝北效果图,供参考。

      原版平面图如下,供您参考,不符合的就是您左侧无法采光,两个卫生间会是暗卫,建议您采用对称户型,解决此问题。这个户型近期会有更新,主要是北侧卧室改为厨房,现在厨房位置,改为两个餐桌面积的餐厅,更符合农村别墅过年对大餐厅的需求。

      上一篇:蝴蝶忍和富冈义勇(蝴蝶忍和富冈义勇是什么关系)

      下一篇:德云社语录(德云社社会语录)

蝴蝶忍和富冈义勇(蝴蝶忍和富冈义勇是什么关系) 南极金字塔(亚特兰蒂斯到底在哪?是在海底吗) 雷布朗多星人(雷布朗多星人和塔塔罗斯谁厉害) 中法航空大学(中国民航大学中欧工程师学院怎么样) 超甜的电视剧(有什么好看的电视剧,颜值还高的电视剧) 百度邮箱163(网易邮箱电脑版登录入口) 余光中绝色(绝色余光中创作背景) dnf奶妈称号(dnf辅助奶妈带什么称号) 怎么变好看(男生什么方法可以让自己变好看) 英朗的致命缺点(14年英朗gt三大缺点)